Dove i tuoi sogni sono di casa

Vendita Casa indipendente – Via Martelloni – Biestro – Pallare (SV)

09.04.2026
3656
Dimensione proprietà: 241 mq
Struttura: 7 Locali
Alloggio: Da ristrutturare
Riscaldamento: autonomo
Vendita
Proprietà ID:
Specifiche
Property bedroom icon Locali: 7
Property bathroom icon Bagni: 2
Property size icon Dimensione proprietà: 241 mq
Property floor icon Floor: 1-2
Property total floors icon Totale piani: 2
Property year built icon Anno di costruzione: 1900
Property heating icon Riscaldamento: autonomo
Property accommodation icon Alloggio: Da ristrutturare
Property ceiling height icon Ceiling height:
Property parking icon Parking: si
Property distance from center icon From center:
Property publication date Publication date: Aprile 01, 2026
Property area size icon Area size: mq
Property garages icon Garages:
Property garages size icon Garages size: no mq
Property additional space icon Spazio aggiuntivo:
Altro
Leasing Icon bagni 2
Leasing Icon ristrutturato no
Leasing Icon giardino si
Caratteristiche
Ascensore
Balcone
Box/Garage
Cantina
Giardino
Piscina
Posto auto coperto
Posto auto scoperto
Riscaldamento autonomo
Riscaldamento centralizzato
Terrazzo
Terreno
Descrizione

Poli Immobiliare propone in vendita ampia unità immobiliare nella frazione di Biestro nel comune di Pallare in provincia di Savona. Posta su due piani situata in contesto tranquillo con un giardino pianeggiante di enorme dimensione
L’immobile ha una superficie catastale complessiva di circa 241 mq, caratteristiche che lo rendono particolarmente interessante per chi è alla ricerca di spazi generosi e versatili.
La distribuzione interna si presta a diverse soluzioni abitative, ideale sia come prima casa sia come abitazione per nuclei familiari numerosi, oppure per chi desidera ambienti ampi da personalizzare.
La posizione e il grande spazio esterno a disposizione garantisce riservatezza e tranquillità, rimanendo comunque a breve distanza dai principali servizi del comune.
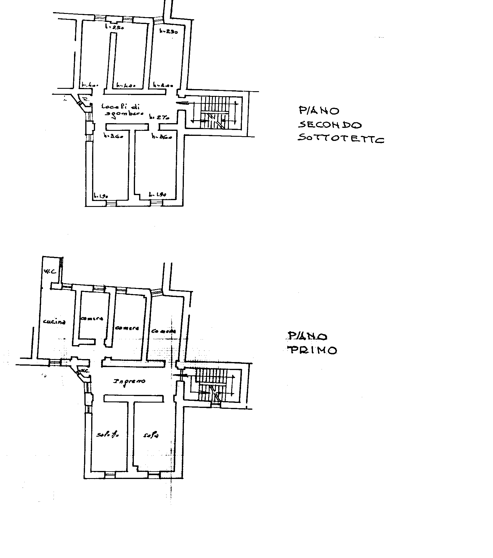
Il secondo piano è composto da una soffitta attualmente allo stato grezzo da ristrutturare completamente, ideale per realizzare un’abitazione su misura secondo le proprie esigenze.
Quest’ultimo, è composto da più locali di sgombero con altezze variabili, collegati da disimpegno centrale, e serviti dal vano scala comune.
La distribuzione degli spazi consente diverse soluzioni progettuali, come la realizzazione di un appartamento con zona giorno, due/tre camere e servizi, oppure più ambienti funzionali per uso residenziale o investimento.
Le altezze interne sono irregolari tipiche del sottotetto, con porzioni sfruttabili e possibilità di ottimizzazione degli spazi mediante intervento di ristrutturazione completa.
Affidati a Poli Immobiliare per l’acquisto o la vendita della tua casa. Sempre più spesso, chi si rivolge a un agente immobiliare lo fa perché non ha gli strumenti giusti per affrontare da solo un passo così importante. In quei momenti è fondamentale potersi affidare a un professionista serio, capace di accompagnarti passo dopo passo verso una scelta consapevole e costruita su misura per le tue reali esigenze.

Posizione
Indirizzo completo: via Martelloni Pallare SV Liguria
Indirizzo semplice: Pallare, via Martelloni, Savona
CAP: 17043
Paese: IT
Property Video
Virtual Tour
Piantina
Via Martelloni Superficie: 241 Locali: 7 Bagni: 2
Floor plan image
Property Tags
0 Reviews
You don't have permission to register
Richiedi una visita